Mitreden. Mitgestalten.

Profitieren Sie von den Vorteilen der Mitgliedschaft!

 
 
1
2
3
4
5
6
100 Freikarten für Kammermitglieder!
100 Freikarten für Kammermitglieder!
7
8
9
10
11
12
13
14
15
16
17
18
19
20
21
22
Mitreden. Mitgestalten.
Mitreden. Mitgestalten.

Profitieren Sie von den Vorteilen der Mitgliedschaft!

23
24
25

Neue Publikation: einfach. schön. weiterbauen.

Wertschätzung und Ertüchtigung einer Schule aus den 70er Jahren

15.04.2025 - Augsburg

Neue Publikation: einfach. schön. weiterbauen.

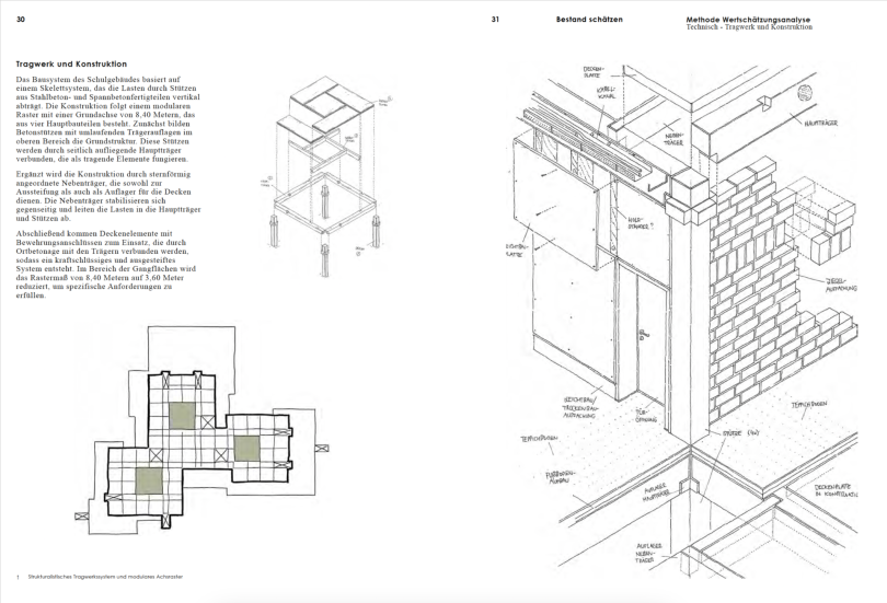
29.000 Quadratmeter Schulgebäude sollten abgerissen werden. Immer noch ein Alltagsfall in Deutschland und Europa. Architekturstudierende der Technischen Hochschule Augsburg haben das betroffene Gymnasium unter die Lupe genommen und untersucht, wie man das Gebäude gestalterisch, funktional und energetisch ertüchtigen könnte. Die Dokumentation zeigt exemplarisch anhand der komprimiert dargestellten Ergebnisse und Methodiken, wie man ein Gebäude aus den 70er Jahren wertschätzen - und danach "einfach. schön. weiterbauen." kann.

Es wird eine Analysemethode zum Umgang mit bestehenden Gebäuden und ihrer Umgebung vorgestellt. Die hier angewandte Wertschätzungsanalyse, die aus einem dänischen Planungs- und Umbaudiskurs stammt, hat deutschlandweit in Fachkreisen bereits Nachfrage und Neugier geweckt. Sie wird seit einigen Jahren an der Technische Hochschule Augsburg, Studiengang Architektur gelehrt.

Die Wertschätzungsanalyse schlägt fünf Strategien für einen Umgang mit dem Bestand vor: Reparatur, Subtraktion, Rekonstruktion, Transformation und Addition. Auch Kombinationen der Strategien sind möglich. Die Entwurfsarbeiten der Studierenden in dieser Publikation sind dementsprechend eingeordnet.

Die technischen und gestalterischen Herausforderungen in das Beispiel des Gymnasiums sind ähnlich wie beim Bauten der 70er Jahren in generell und dienen als Inspiration für die vielen Brüder- und Schwesterbauten, die in öffentlicher Hand in der Bundesrepublik vor einem Umbau oder einem Abriss stehen.

Die gesamte Publikation kann hier als PDF  heruntergeladen werden:
Publikation: einfach. schön. weiterbauen.

Weitere Informationen zum Projekt:
Projektseite

Ansprechpartnerin
Prof. Architektin Mikala Holme Samsøe
Fakultät für Architektur und Bauwesen
Technische Hochschule Augsburg
Telefon: +49 821 5586-3026
mklhlmsmsthd

Blick ins Buch

 
 
1
2
3
4
5
6
7
8
9

Quelle: Technische Hochschule Augsburg, Fotos: Mikala Holme Samsøe

Beitrag weiterempfehlen

Die Social Media Buttons oben sind datenschutzkonform und übermitteln beim Aufruf der Seite noch keine Daten an den jeweiligen Plattform-Betreiber. Dies geschieht erst beim Klick auf einen Social Media Button (Datenschutz).

5 gute Gründe für die Mitgliedschaft

Die Kammer auf Social Media

Die Bayerische Ingenieurekammer-Bau bei LinkedIn: #bayika-bau
Die Bayerische Ingenieurekammer-Bau auf Instagram #bayikabau
 
Die Bayerische Ingenieurekammer-Bau bei Facebook @BayIkaBau   #BayIkaBau
Die Bayerische Ingenieurekammer-Bau bei XING #bayerischeingenieurekammer-bau
 
Die Bayerische Ingenieurekammer-Bau bei YouTube
 

Jetzt Newsletter abonnieren!

Newsletter abonnieren und immer auf dem Laufenden bleiben - Grafik: Web Buttons Inc /  Fotolia

Frage des Monats

Mit welchen Maßnahmen lässt sich das Ziel eines klimaneutralen Gebäudebestandes am besten erreichen?
Stärkere Kontrollen der Energieausweise und Konsequenzen bei Verstößen
Nachweis nach GEG sollte verpflichtender Bestandteil der Bauvorlagen sein
Im Neubau und im Bestand muss die Graue Energie in die energetische Gebäudeplanung einfließen
Ergänzung der kommunalen Wärmeplanung um eine Stromnetzplanung
Umstellung der Länderregelungen auf bundeseinheitliche Regelung

Frühere Ergebnisse

Sustainable Bavaria

Sustainable Bavaria

Nachhaltig Planen und Bauen

Klimaschutz - Nachhaltig Planen und Bauen

Digitaltouren - Digitalforen

Digitaltouren - Digitalforen - Jetzt kostenfei ansehen

Netzwerk junge Ingenieur:innen

Netzwerk junge Ingenieur:innen

Werde Ingenieur/in!

www.zukunft-ingenieur.de

www.zukunft-ingenieur.de

Veranstaltungstipps

Veranstaltungstipps

Beratung und Service

Beratung und Serviceleistungen - Foto: © denisismagilov / fotolia.com

Planer- und Ingenieursuche

Planer- und Ingenieursuche - Die Experten-Datenbank im bayerischen Bauwesen

Für Schüler und Studierende

Infos für Schüler und Studierende - © Foto: Drubig Photo / Fotolia.com

Einheitlicher Ansprechpartner

Einheitlicher Ansprechpartner

Berufsanerkennung
Professional recognition

Berufsanerkennung

Gebäudeforum klimaneutral

Partner des Netzwerks „Gebäudeforum klimaneutral“

Meine Bayika - Bayika-Portal

Anschrift

Bayerische Ingenieurekammer-Bau
Körperschaft des öffentlichen Rechts
Schloßschmidstraße 3
80639 München